147 Litchfield Turnpike, Washington, CT
Offered at$785,000
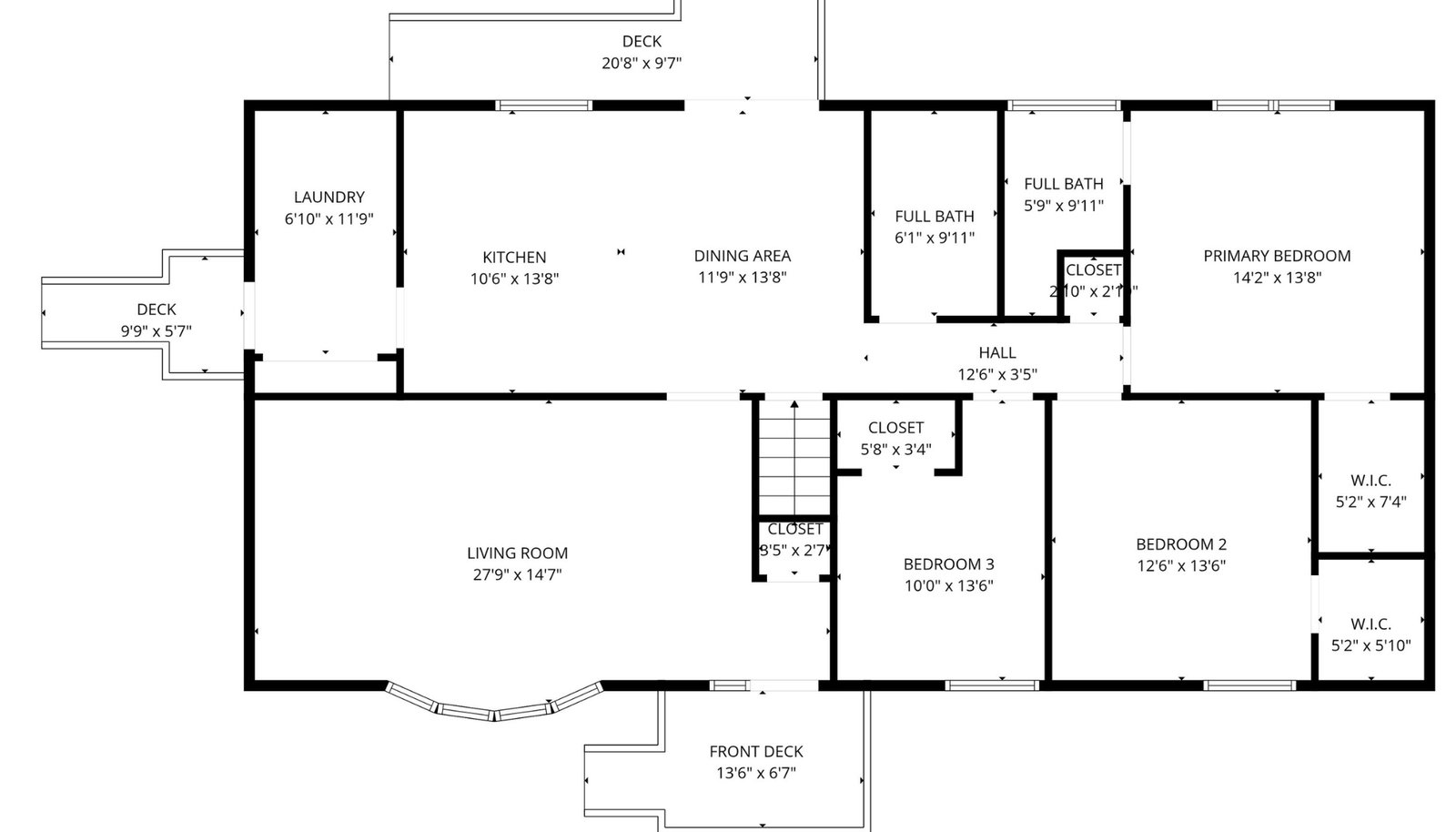
Exceptional 25+ acres across two parcels in New Preston with town beach rights to Lake Waramaug. This 3-bedroom, 2-full bath home sits 800 feet back from the road, cocooned in privacy. While the house would benefit from modernization, it's a perfect blank canvas-great bones, functional layout and ready for your vision. Live in it comfortably as-is while you plan, or reimagine it entirely with today's finishes and open floor plan. The deep setback and mature... Read More
2
Bedrooms
1/1
Bathrooms
1,568
SqFt
25.89
Acres
Photo Gallery






























Prev
Next
Location
147 Litchfield Turnpike, Washington, CT 06777Get Driving DirectionsExplore Washington
Located in the heart of Litchfield County, Washington is known for its rich history and unspoiled beauty. The rural, residential community is nestled in the Litchfield Hills...
Contact Us

